
120m² avec vue – Noës, Valais

Un immeuble résidentiel parfaitement entretenu, niché dans un quartier paisible de Noës avec une vue dégagée sur les Alpes valaisannes.

Un vaste espace de vie baigné de lumière naturelle, ouvert sur la salle à manger avec accès direct à la loggia orientée Sud. Les grandes fenêtres offrent un panorama alpin exceptionnel.


Cuisine habitable entièrement rénovée, équipée d'électroménager Miele haut de gamme. Plan de travail généreux et rangements optimisés pour un confort au quotidien.

Spacieuse chambre à coucher avec lumière naturelle abondante. Dimensions généreuses permettant un aménagement personnalisé tout en conservant un espace de circulation confortable.

Une seconde chambre tout aussi lumineuse, idéale comme bureau à domicile ou chambre d'invités. Orientation optimale pour un ensoleillement maximum.

La troisième chambre complète cette configuration familiale. Parfaite pour les enfants ou comme espace dédié à vos passions.

Salle de bain rénovée avec douche et baignoire. Carrelage moderne et finitions soignées pour un espace de bien-être au quotidien.

Loggia ensoleillée exposée plein Sud, offrant un espace extérieur privatif idéal pour profiter des beaux jours avec vue sur les montagnes et le village.

Une perspective unique depuis les airs — découvrez l'emplacement privilégié de la résidence, la proximité des services et l'environnement verdoyant du quartier.

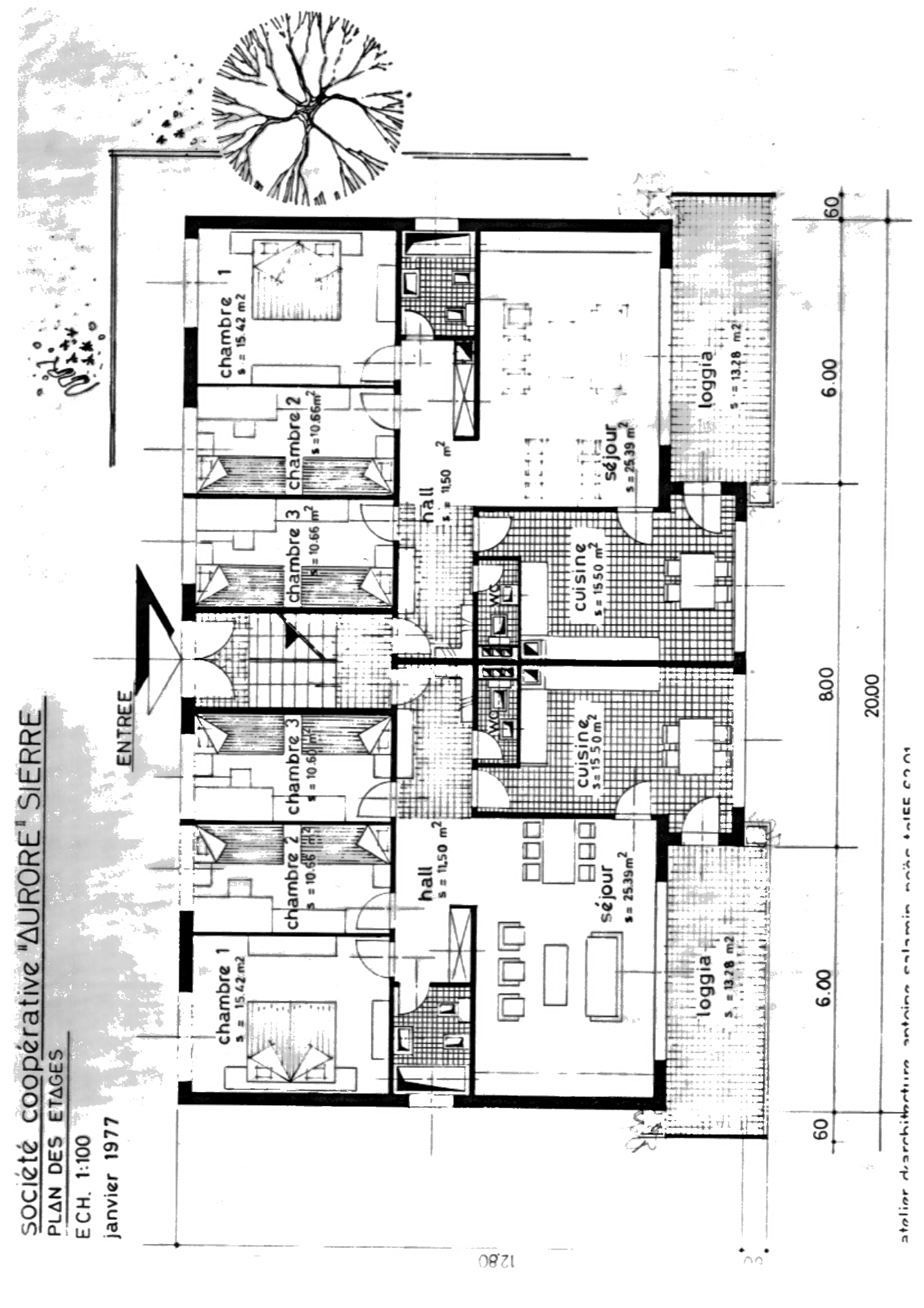
Plan architectural détaillé de l'appartement — visualisez la distribution des espaces, les surfaces de chaque pièce et la circulation fluide de ce logement de 120m².

Un emplacement stratégique à Noës : commerces à pied, gare de Sierre à 5 min en voiture, accès autoroute A9 immédiat. Le calme de la campagne, la proximité de la ville.
Spacieux appartement de 120m², bien entretenu, à proximité immédiate de toutes commodités dans un quartier calme de Noës à 5 minutes du centre-ville de Sierre et de l'entrée d'autoroute A9.
Cave, galetas, buanderie collective, parc à vélo extérieur, place de parc extérieure. Garage-box privatif (CHF 30'000.-) en sus.
L'appartement est parfaitement situé dans un quartier calme de Noës (commune de Sierre) à seulement quelques mètres du centre du village et de ses commerces. La ville de Sierre et l'entrée d'autoroute A9 se situent à 5 minutes en voiture.
| Destination | |||
|---|---|---|---|
| Gare | 2.83 km | 39 min. | 9 min. |
| Transports publics | 73 m | 4 min. | 1 min. |
| Autoroute | 831 m | 16 min. | 3 min. |
| Ecoles | 446 m | 8 min. | 2 min. |
| Commerces | 835 m | 13 min. | 3 min. |
120m² de vie au cœur du Valais — prêt à vous accueillir.
CHF 580'000.-
Remplissez le formulaire ci-dessous et nous vous recontacterons dans les plus brefs délais.
Spacieux Appartement 4½ Pièces – Noës